Schweizerische Nationalbibliothek
Neubau Tiefmagazin West
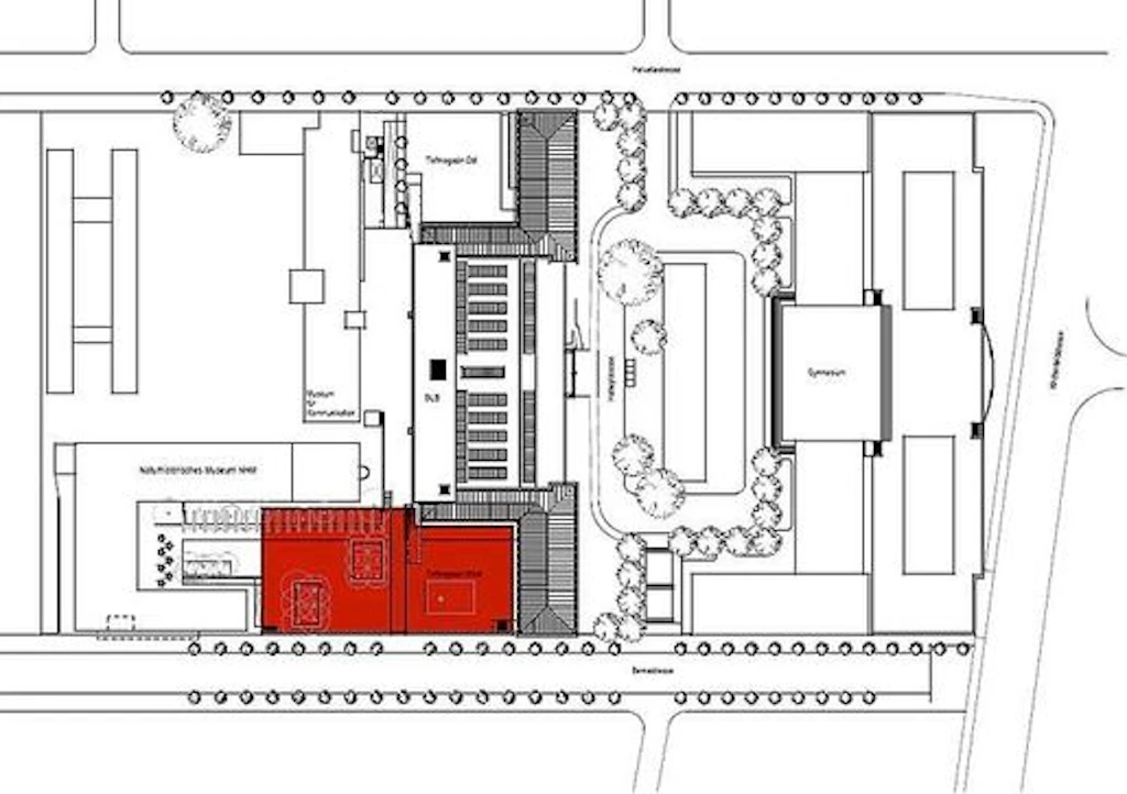
Die Schweizerische Nationalbibliothek wurde in den Jahren 1929 - 1931 gebaut und liegt mitten in der „Museumsinsel" Kirchenfeld. Um den steigenden Bedarf nach Lagerfläche und Magazinen abzudecken, wurde die Nationalbibliothek über die Jahre in verschiedenen Bauetappen erweitert.
Die Erweiterung „Neubau Tiefmagazin West" stellt ein Bauvolumen von 32'000 m3 dar, was einer Bruttogeschossfläche von 7'000 m2 entspricht. Die mittels Rollregalanlagen ausgerüsteten Räume schaffen eine Lagerkapazität von. 85'000 Laufmeter Buchstellfläche.
Das Tiefmagazin muss ein besonderes Innenklima garantieren, was höchste Anforderungen an die Qualität des Tiefbaus erfordert.
Für die Realisierung des Tiefbauvorhabens, inmitten bestehender Gebäude, wurde aus diesem Grund ein spezielles Baugrubenabschlusssystem gewählt. Dieses System besteht aus Schlitzwänden und einer eigens für dieses Objekt entwickelten Deckelbauweise, welche Arbeiten unter Tag erfordert.
Der Freiraum über dem Neubau Tiefmagazin West wird nach Fertigstellung als Garten gestaltet und nimmt Bezug auf die quartierprägenden Aussenraumstrukturen.
Im September 2004 hat das BBL die Baubewilligung für den Bau erhalten und Anfang Januar 2005 konnte mit dem Neubau Tiefmagazin West begonnen werden. Der Bauabschluss ist für Dezember 2008 geplant.
Projektleiter Bauherr:
Horst Knaupp, BBL
Generalplaner:
alb Architektengemeinschaft AG,
3013 Bern
mit
Berger + Wenger Bauingenieure AG,
3052 Zollikofen
Fotograf:
Marco Schibig


