Cinémathèque Suisse (CS), Penthaz VD - 2007
Baubeginn zur Erweiterung des Archivierungszentrums
Anfangs September 2010 wurde mit den Bau- und Sanierungsarbeiten begonnen. In einer ersten Etappe werden die bestehenden Gebäude saniert. Diese Arbeiten sollten Ende März 2012 abgeschlossen sein. Das neue Archivierungsgebäude wird spätestens im August 2012 fertig erstellt und betriebsbereit sein. Die Zeit von 2012 bis 2013 wird für die Cinémathèque das Jahr der Umzüge sein.
Die Cinémathèque suisse (CS), das schweizerische Filmarchiv, sammelt und bewahrt im Auftrag des Bundes, des Kantons Waadt und der Stadt Lausanne das kulturelle Erbe des nationalen und internationalen Filmschaffens. Die reichhaltigen Sammlungen der CS mit zum Teil vom Zerfall bedrohten Stücken müssen mit grösster Sorgfalt gelagert und unterhalten werden. Seit 1988 nutzt die CS das Gebäude einer ehemaligen Buchbinderei in Penthaz (VD) für die Archivierung und Bewirtschaftung der Sammlungsstücke.
Eine durch das Bundesamt für Bauten und Logistik und das Bundesamt für Kultur im Jahr 2000 durchgeführte Betriebsanalyse zeigte Mängel auf, welche die Sicherheit der Sammlung gefährden und eine weitere Entwicklung verunmöglichen. Mit Bundesratsbeschluss vom 10. Juni 2005 wurde das BBL beauftragt, Sofortmassnahmen zur Aufrechterhaltung von Sicherheit und Betrieb der Cinémathèque Suisse zu realisieren sowie deren langfristige Entwicklung baulich zu ermöglichen.
Nachdem die betrieblichen und räumlichen Bedürfnisse der Nutzer bekannt waren, führte das BBL im Januar 2007 einen Architekturwettbewerb durch, aus dem das Generalplanerteam EM2N als Sieger hervorging.
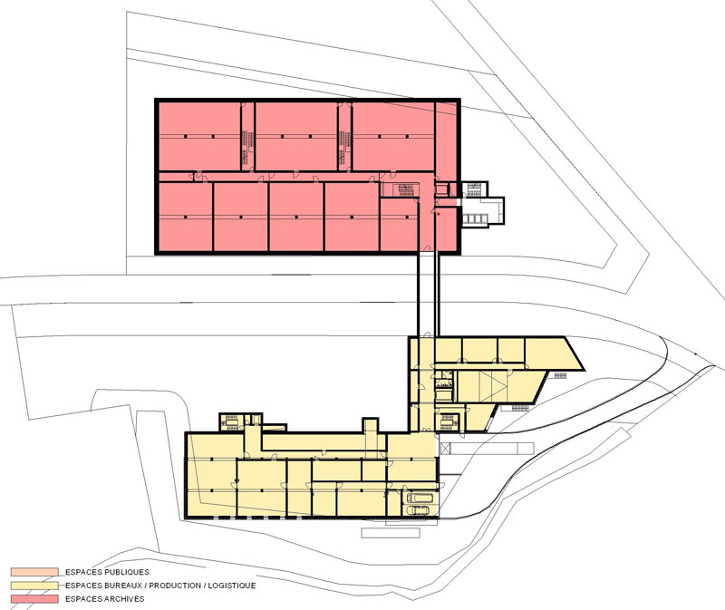
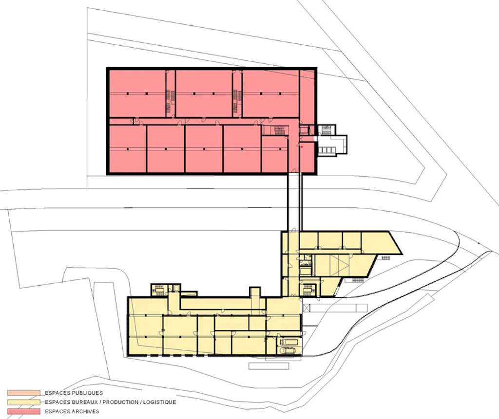
Das Projekt besteht aus dem Neubau eines unterirdischen Archivgebäudes (Penthaz II) sowie der Umnutzung und Sanierung des bestehenden Gebäudes (Penthaz I). Das Gebäudekonzept des Archivgebäudes erlaubt auch eine spätere Erweiterung, um den zu erwartenden Bestandeszuwachs ab dem Jahr 2020 aufnehmen zu können und ermöglicht dadurch dem Bund die langfristige Sicherstellung des audiovisuellen Erbes der Schweiz.
Gestützt auf die Vorstudie und die Kostenschätzung wurde für dieses Projekt ein Verpflichtungskredit von 49,5 Millionen Franken beantragt.
Projektleiter Bauherr:
André Bächler
Architektur:
Equipe d'études générales EM2N architectes, Zürich webcam cinémathèque suisse
_12.png?w=1024&auto=format)
_01.png?w=1024&auto=format)
_02.png?w=1024&auto=format)
_03.png?w=1024&auto=format)
_04.png?w=1024&auto=format)
_05.png?w=1024&auto=format)
_06.png?w=1024&auto=format)
_07.png?w=1024&auto=format)
_08.png?w=1024&auto=format)
_09.png?w=1024&auto=format)
_10.png?w=1024&auto=format)
_11.png?w=1024&auto=format)
_13.png?w=1024&auto=format)